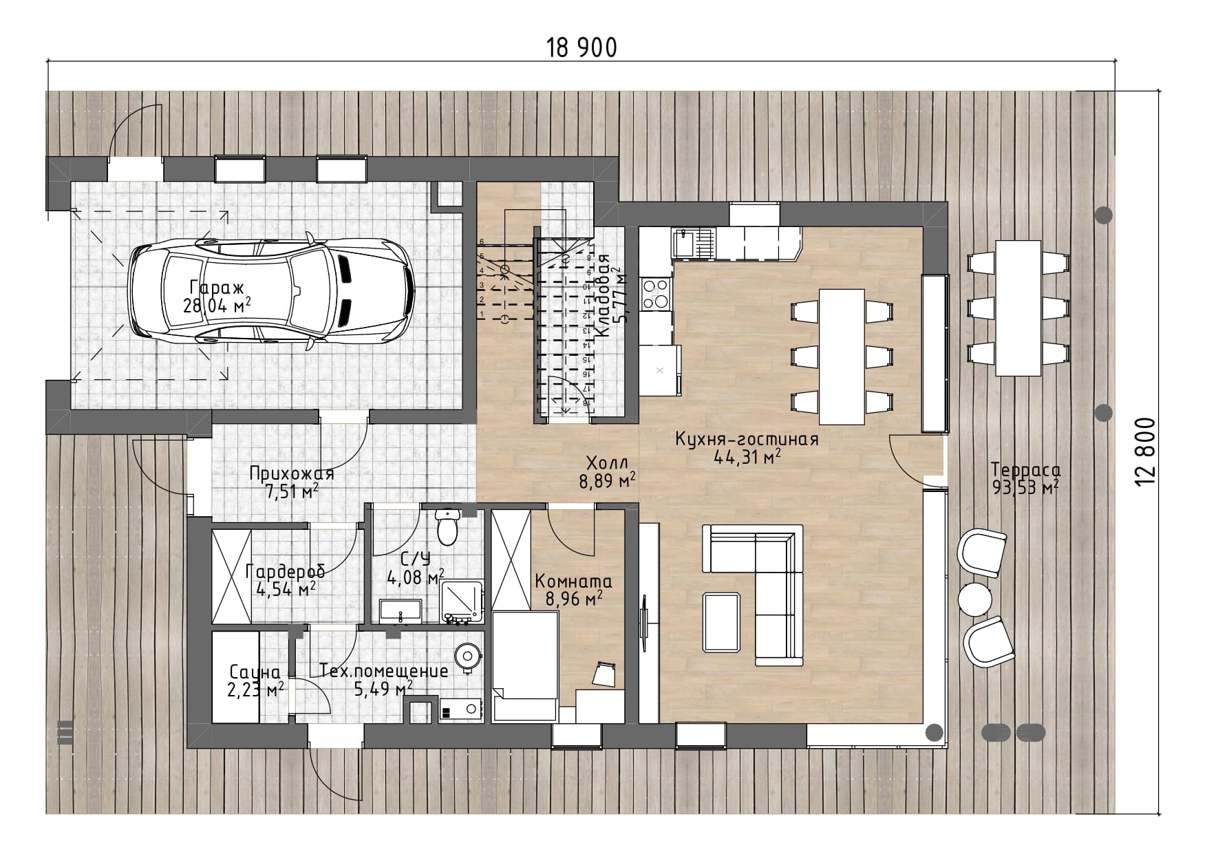
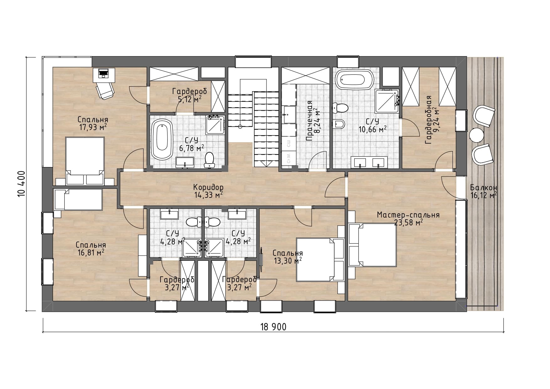
Двухэтажный коттедж из керамических блоков Porotherm на плитном фундаменте для проживания до 8-ми человек. За комфорт отвечает большая кухня-гостиная с зоной столовой, гостевая комната, сауна и много полезных помещений. 4 спальни с персональными санузлами и гардеробными. Полноценный второй этаж, встроенный гараж, опоясывающая терраса 94 кв.м.
В проекте: кухня-гостиная со столовой, 4 спальни с санузлами и гардеробными, гостевая комната, встроенный гараж, большая терраса, технические и вспомогательные помещения.
Проект может быть выполнен в другом стеновом материале: Клееный или Профилированный брус, Норвежский лафет.
Проекты домов из клееного бруса
Проекты домов из бревна
Проекты домов из профбруса
Проекты домов Post&Beam
БАНИ, БЕСЕДКИ, ГАРАЖИ
КОМБИНИРОВАННЫЕ ДОМА
Отзывы о нас

