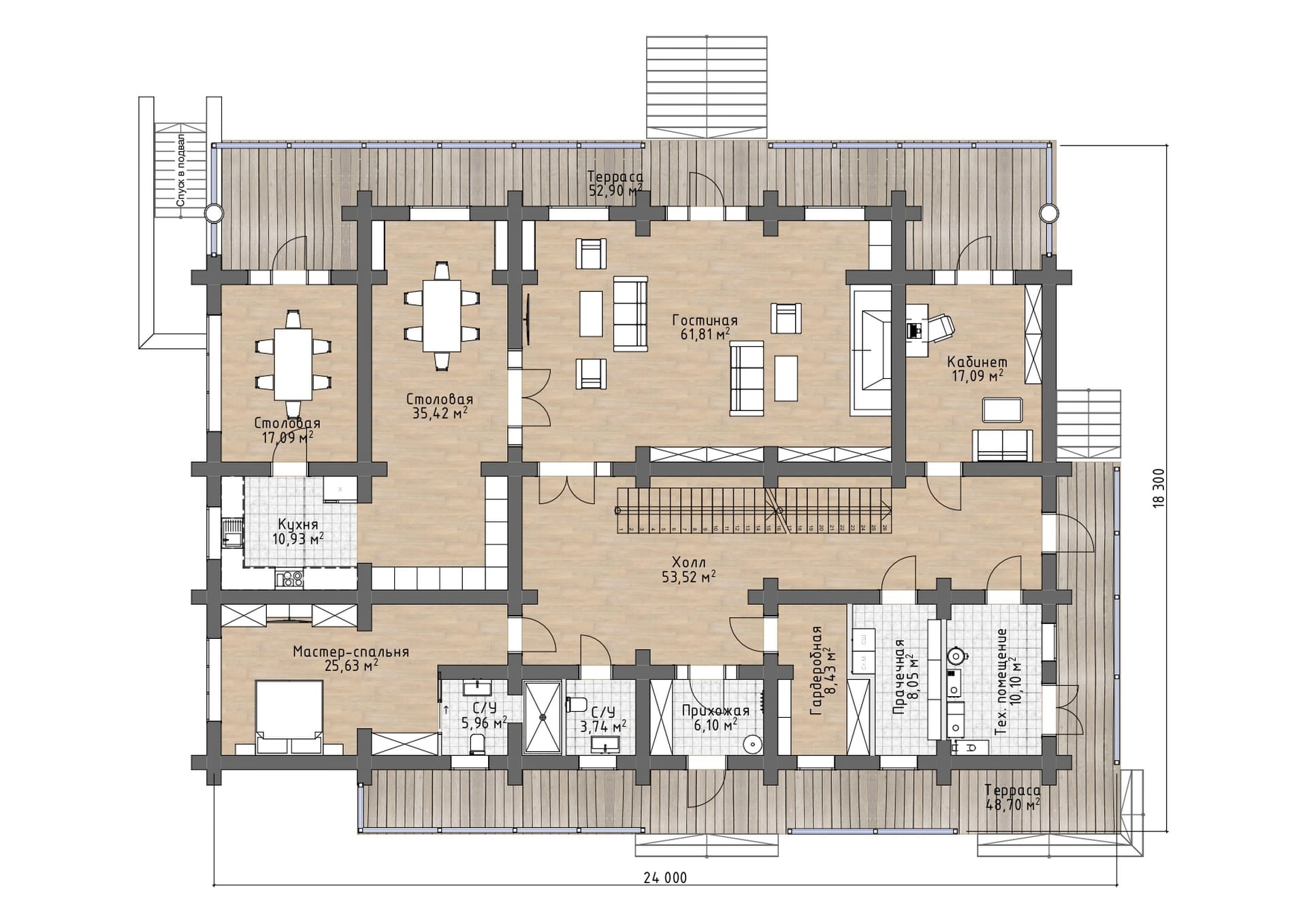
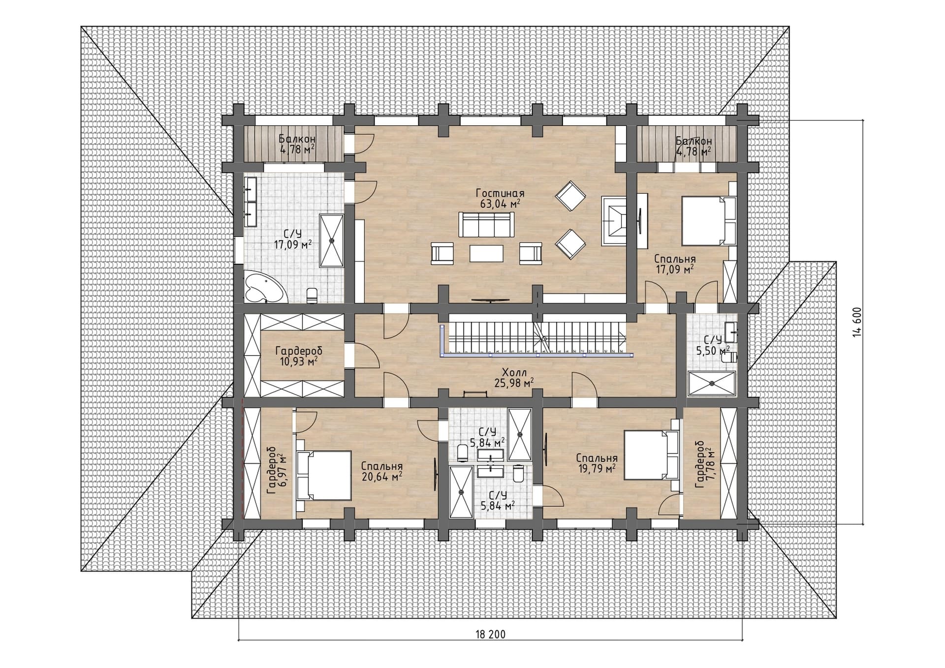
Рубленый коттедж из Кедра для комфортного одновременного пребывания 8-ми человек с двумя большими гостиными по 60 кв.м., не менее просторным холлом, рабочим кабинетом и четырьмя спальными комнатами. В доме шикарная ванная комната, 5 санузлов, много гардеробных комнат и второстепенных помещений. 2 балкона + 2 веранды площадью по 50 кв.м.
Проект может быть выполнен в другом стеновом материале: Норвежский лафет, Клееный брус.
 
		 Проекты домов из клееного бруса
Проекты домов из клееного бруса Проекты домов из бревна
Проекты домов из бревна Проекты домов из профбруса
Проекты домов из профбруса Проекты домов Post&Beam
Проекты домов Post&Beam БАНИ, БЕСЕДКИ, ГАРАЖИ
БАНИ, БЕСЕДКИ, ГАРАЖИ КОМБИНИРОВАННЫЕ ДОМА
КОМБИНИРОВАННЫЕ ДОМА Отзывы о нас
Отзывы о нас 
                     
							
							                     
							
							                     
							
							                     
							
							                     
							
							                    
